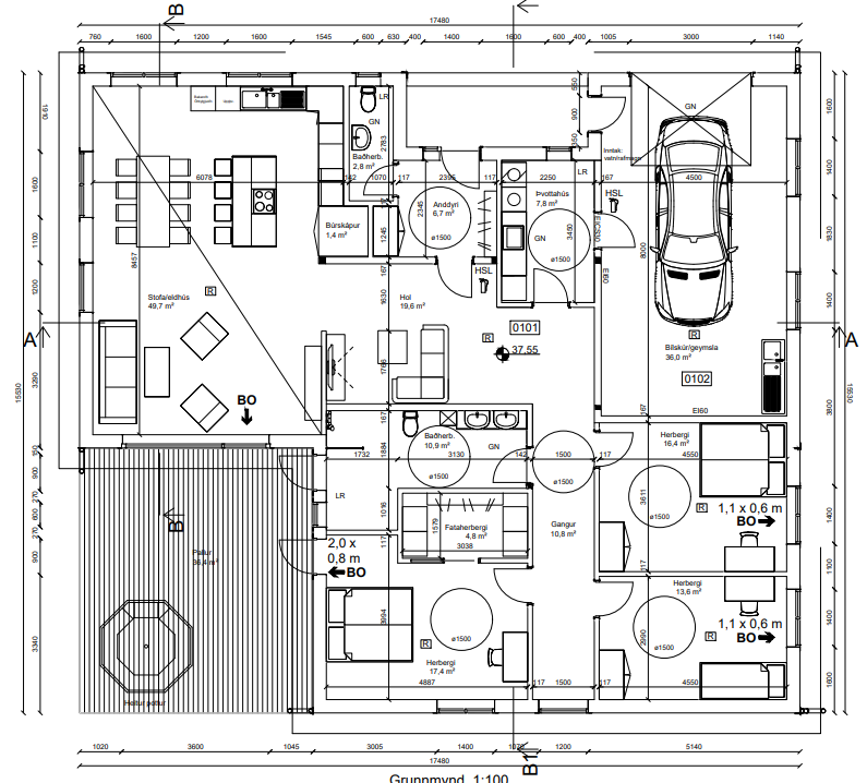
Auður er glæsilegt einbýlishús á einni hæð, stærð 227,1 fm. Húsið er einstaklega glæsilegt, hátt til lofts og stórir gólfsíðir gluggar. Húsið er með bílskúr og hægt er að fjölga herbergjum og/eða stækka rýmin.
Auður er glæsilegt einbýlishús á einni hæð, stærð 227,1 fm. Húsið er einstaklega glæsilegt, hátt til lofts og stórir gólfsíðir gluggar. Húsið er með bílskúr og hægt er að fjölga herbergjum og/eða stækka rýmin.