Teikningar

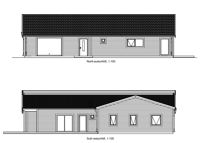
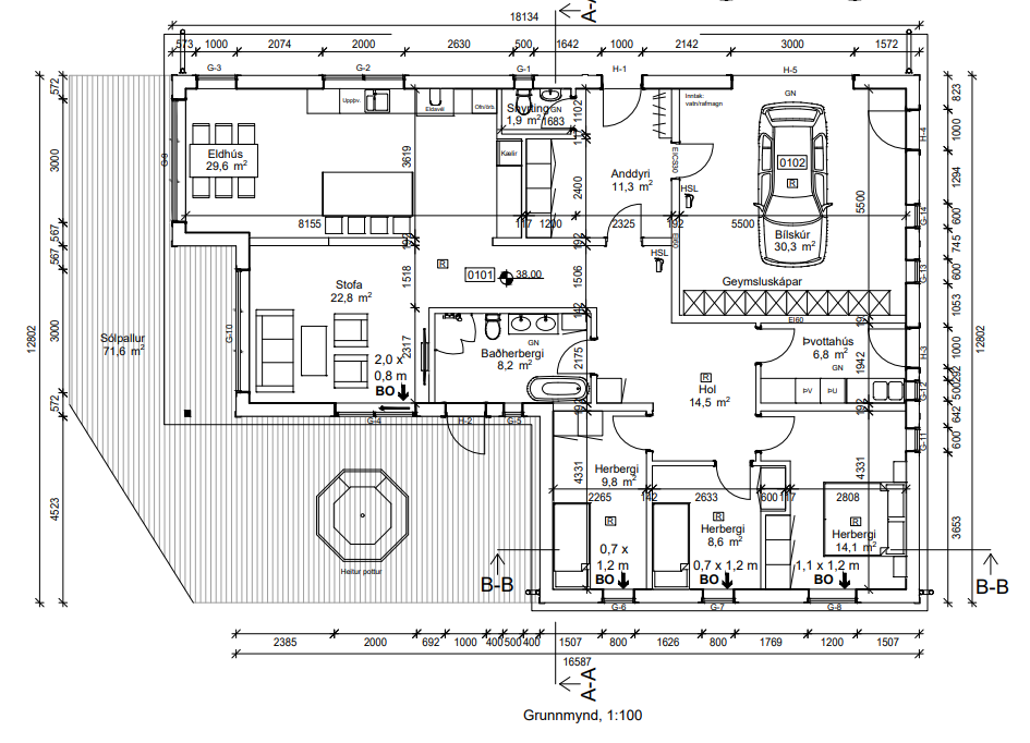
Kalldal einbýlishús með bílskúr

Kalldal einbýlishús á einni hæð með bílskúr og þremur svefnherbergjum. Mikil lofthæð í stofu, eldhúsi og gangi/hol. Húsið er alls 185,4 fm að stærð. Getur verið bæði einbýlishús og frístundahús.