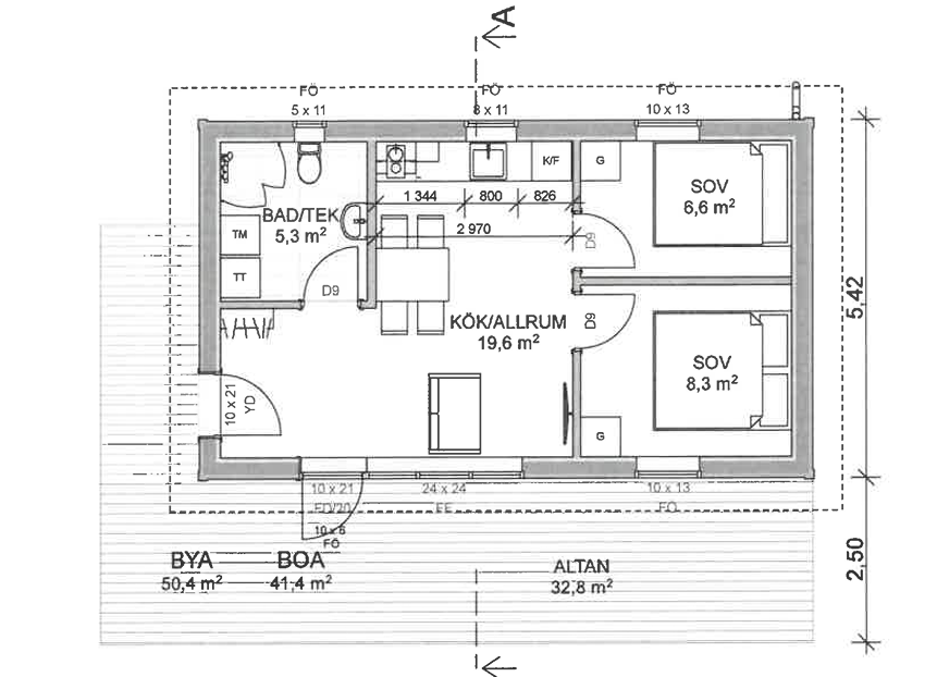
Soltorp frístundahús á einni hæð með verönd. Húsið er 50 fm en getur verið stærra/minna eftir óskum. Tvö svefnherbergi, salerni með þvottaaðstöðu og sturtu. Eldhús og stofa. Húsin eru með sama byggingarstaðla og íbúðarhúsin og eru glæsileg frístundahús. Þak getur verið einhalla eða venjulegt. Frístundahúsin hafa jafn mikil gæði og íbúðarhúsnæði þ.e. einangrun er sú sama og þar með þykkt útveggja og þaks. Gler er þrefalt og gluggar eru ál/timbur gluggar. Bárujárn á lektum á þaki. Húsin er auðveldlega hægt að stækka í allar áttir allt eftir þörfum hvers og eins.








