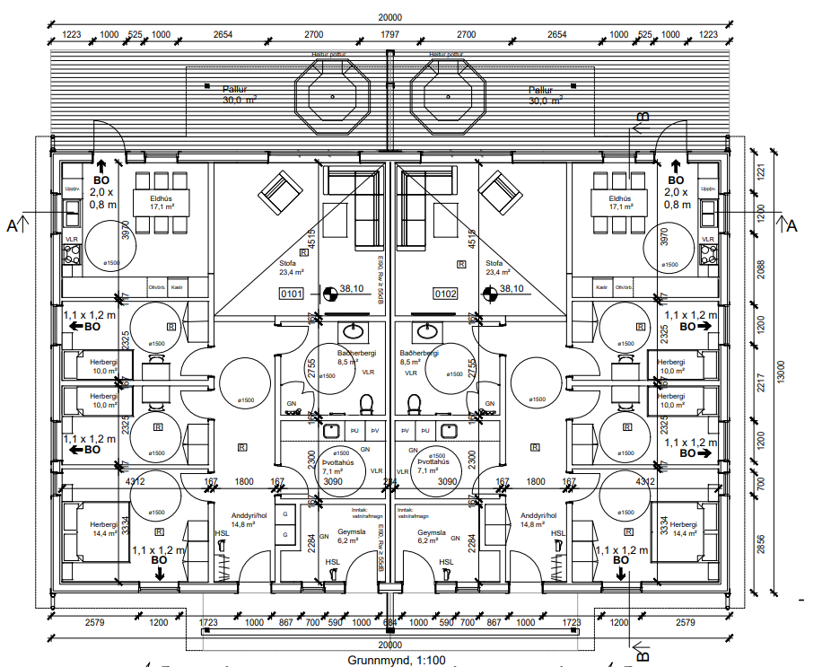
Strycksele húsin geta verið einbýli á einni eða tveimur hæðum. Það getur verið parhús og frístundahús. Húsin eru falleg og geta verið hönnuð eftir þörfum notandans hverju sinni, stærri/minni og sömuleiðis er hægt að hanna innra rými hússins eftir óskum notandans.



